Palais de justice pour quatre juridictions
Sculpté par des blocs en béton blond entre lesquels s’infiltre la lumière, le nouveau palais de justice est un édifice protecteur et pérenne où règne une ambiance sereine.
Au début de l’été, le nouveau palais de justice de Béziers a accueilli magistrats, juges et l’ensemble des personnels qui ont quitté les locaux historiques de l’ancien évêché, situé place de la Révolution au centre-ville. L’édifice, conçu par Christine Edeikins, architecte associée d’Ateliers 2/3/4/, s’inscrit dans un quartier en mutation situé à l’entrée sud-est de la ville à proximité de la gare SNCF. Il prend place sur une parcelle rectangulaire, dont un des petits côtés s’ouvre au sud sur l’avenue du Président Wilson, une importante voie d’accès au centre-ville, marquée par un trafic automobile dense et les nuisances qui l’accompagnent.
Une présence forte
Le nouveau palais de justice abrite quatre juridictions, le tribunal de grande instance (TGI), le tribunal d’instance, le tribunal de commerce et le conseil de prud’hommes. Il se présente sous la forme d’un quadrilatère composé de grands blocs de béton blond texturé et sablé répartis sur trois lits horizontaux réguliers, qui correspondent aux étages de l’équipement. Les blocs sont décalés entre eux, selon trois nus différents, sur un même niveau et entre les niveaux. De fines fentes verticales et des redans viennent en creux souligner la géométrie des blocs. Les façades minérales sont ainsi rythmées par le subtil décalage des blocs souligné par le jeu changeant de l’ombre et de la lumière au fil de la journée. L’édifice affiche sur l’espace public une présence forte, sereine et protectrice, qui sied à l’institution judiciaire.
Sensibilité et rusticité
Aujourd’hui, le ministère de la Justice souhaite que ses bâtiments expriment l’ouverture et la transparence de l’institution. Cependant, il faut assurer la protection face à d’éventuelles agressions ou manifestations. De plus, chaque palais de justice est un lieu où l’on traite de sujets sensibles. Il doit donc offrir un haut niveau de sécurité et de confidentialité, aussi bien pour les personnes que pour les dossiers. À ces enjeux antinomiques liés au programme, s’ajoute la réalité du terrain, qui est assez étroit au regard de ce qu’il faut construire. Ainsi, pour permettre le bon fonctionnement des espaces dédiés au public à rez-de-chaussée, il était nécessaire d’utiliser toute la largeur de la parcelle et la quasi- totalité de sa superficie. « Cela m’a conduit à concevoir un bâtiment compact, presque carré, d’environ 60 m de côté, précise l’architecte Christine Edeikins. Les deux rues latérales à l’ouest et à l’est présentent des vis-à-vis très proches.
Compte tenu de cela, j’ai fait le choix de façades ne présentant aucune baie directement ouverte sur l’espace public, afin d’empêcher les vues depuis l’extérieur et préserver le plus possible l’intimité. La lumière naturelle pénètre dans les locaux, situés derrière les façades, par les fentes verticales et les redans aménagés entre les blocs. Dans le même esprit, cinq patios creusés dans la masse de l’édifice permettent d’éclairer les espaces et les locaux situés au cœur de l’équipement.
Mon objectif dans ce projet est de fabriquer un bâtiment protecteur dans lequel règne une abondance de lumière naturelle propice au confort et à la sérénité des usagers du lieu. Constituée comme un empilement de roche dans une carrière, l’enveloppe extérieure sculptée par des blocs en béton blond dégage une monumentalité qui exprime l’importance de l’institution et sa pérennité, tout en lui conférant une belle sensibilité par la rusticité de sa matière. »
Un parvis intériorisé
La façade principale du palais de justice se dresse sur l’avenue du Président Wilson. L’absence d’espace de recul disponible du fait de l’étroitesse du site et les nuisances provenant de l’avenue ne permettaient pas d’aménager, devant l’édifice, le parvis classique qui participe de l’image symbolique d’un palais de justice dans la ville.
Christine Edeikins choisit de fabriquer un dispositif architectural qui consiste à intégrer le parvis dans le volume du bâtiment. L’angle sud-est, au croisement de l’avenue du Président Wilson et de la rue Archimède, est creusé sur deux niveaux à la manière des loggias italiennes de la Renaissance. Recouvert par le dernier étage, le parvis ainsi protégé du tumulte environnant et ombragé est un lieu de représentation de l’institution judiciaire sur l’espace public, à la fois extérieur et intériorisé. Deux puits de lumière, percés dans la partie supérieure, assurent son éclairement naturel dans la profondeur. Véritable antichambre du palais, dans laquelle se dresse un chêne, le parvis s’ouvre sur la salle des pas perdus et les lieux accessibles au public. Les dispositifs anti- agressions et les grilles du palais sont élégamment intégrés à l’ensemble sans interrompre la fluidité et la continuité spatiales entre intérieur et extérieur. Le public perçoit ainsi la fonction du bâtiment depuis l’avenue par la vue offerte, à travers le parvis, sur la salle des pas perdus, le patio et les salles d’audience en arrière-plan. Pour Christine Edeikins, « le parvis constitue l’entrée en matière du palais ».
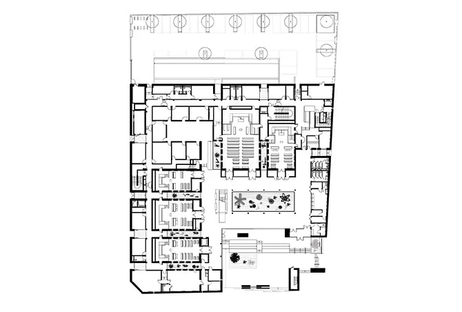
Comme une oasis
Depuis le parvis, l’entrée se fait par le sas de sécurité, qui donne directement accès à la salle des pas perdus. Cette dernière dessert les 5 salles d’audience et s’organise autour du grand patio central qui traverse le bâtiment dans toute sa hauteur. Les 2 salles d’audience pénale ferment la perspective frontale depuis l’avenue, tandis que les 3 salles d’audience civile se développent sur un côté de la salle des pas perdus et du parvis. Chaque salle, revêtue de panneaux en béton identiques à ceux des façades, se lit depuis l’espace commun comme un bloc minéral encadré par des failles lumineuses que dessinent de fins patios aménagés de galets, de bois flottés et de petits végétaux méditerranéens. Par ces patios, la lumière naturelle pénètre jusque dans les salles d’audience par des ouvertures verticales, toute hauteur, très effilées que prolongent au plafond des gorges lumineuses dessinées pour accueillir l’éclairage artificiel. Le grand patio central, planté de fougères arborescentes, est luxuriant. Véritable petite oasis de verdure au cœur de la salle des pas perdus, il installe une ambiance de calme et de fraîcheur qui contraste avec l’extérieur. Le patio et la lumière qu’il diffuse qualifient les lieux, organisent les flux, mettent à distance les attentes civiles et pénales. À l’articulation des salles d’audience civile et pénale, légèrement en retrait, viennent les 7 salles d’audience de cabinet regroupées autour de leur propre espace d’attente, éclairé zénithalement par des sheds.
Lumière et sérénité
À partir du 1er étage, on trouve les autres patios qui amènent la lumière au cœur du bâtiment. Oliviers, euphorbes et plantes locales leur confèrent une ambiance très méditerranéenne. Aux 1er et 2e étages, l’escalier principal arrive sur un grand palier accessible au public, qui forme une galerie ouverte en balcon sur le rez-de-chaussée et articulée avec les 5 patios. La distribution des différentes juridictions, dont l’accès est contrôlé, se fait à partir de ces paliers qui proposent des espaces d’attente lumineux et agréables. Les bureaux des juridictions s’ouvrent sur les différents patios, ce qui permet à leurs occupants de profiter du calme de ces lieux, de leur paysage végétal et de la fraîcheur qui s’en dégage. Les patios sont dimensionnés pour permettre de moduler les ambiances en fonction des saisons, éviter un trop fort ensoleillement direct en été et pouvoir profiter des apports solaires en hiver et en demi-saison. Les bureaux situés en périphérie, derrière les façades, reçoivent la lumière naturelle par des baies vitrées latérales donnant sur les redans. Les vitrages disposés en fond de redan éclairent les circulations. Ce dispositif assure l’intimité des bureaux par rapport à l’extérieur. Il les protège aussi de l’ensoleillement direct pendant la période estivale, évitant ainsi tous risques de surchauffe et d’inconfort dans ces espaces de travail et de circulation. Les locaux partagés, salles de convivialité (cafétéria), de réunion, etc., sont regroupés au 2e étage, dans la partie qui recouvre le parvis. Ils bénéficient de deux belles terrasses qui agrémentent le confort des lieux.
« À l’agence, nous portons une grande attention aux usages, explique l’architecte. Je voulais que ceux qui travaillent ou qui le fréquentent ressentaient un véritable sentiment de protection et de sécurité dans une ambiance confortable. » La présence importante de la lumière naturelle et de la végétation dans le bâtiment, la monochromie des matériaux, la couleur et la matière du béton à l’intérieur comme à l’extérieur, le ton sable des habillages en fibres- ciment, des matériaux de sol et de plafond, des menuiseries et des mobiliers en chêne participent à l’harmonie et à la sérénité des lieux.
Béton : structure et parement
La structure du bâtiment est essentiellement constituée de voiles porteurs et de planchers construits en béton coulé en place. Elle répond aux exigences de la réglementation parasismique qui s’applique à Béziers. La partie qui recouvre le parvis est portée par une poutre voile, tandis qu’une pile verticale contenant un escalier vient reprendre les charges. Le bâtiment est entièrement isolé par l’extérieur. L’isolant est fixé sur les voiles de façades coulés en place. Les façades des patios sont revêtues d’un habillage en plaques de fibres-ciment. Celles de l’enveloppe extérieure sont habillées de panneaux préfabriqués dont la texture rappelle les traits de scie des blocs de pierre extraits des carrières. Pour obtenir cet aspect, l’architecte a fait appel à un plasticien textureur, Romain Taïeb.
L’artiste a effectué différentes recherches sur des modules en polystyrène puis les a enduits de plâtre. À partir du motif retenu, sont réalisées les 2 matrices élastomère de 6,5 m x 4 m, qui seront utilisées pour fabriquer les 339 panneaux nécessaires. Le béton mis en œuvre est composé d’un mélange de ciment gris et de ciment blanc, de granulat blanc et beige, et de sable choisis pour obtenir la couleur « sable blond » voulue par l’architecte. Tous les panneaux sont sablés avant d’être posés et reçoivent un traitement hydrofuge. Ceux qui sont situés au rez-de-chaussée, ou qui peuvent être atteints par le public, reçoivent en plus un traitement anti-graffitis. Ils ont une épaisseur de 14 cm. Certains possèdent un retour total ou partiel sur 1, 2, 3, voire 4 côtés, pour figurer la massivité des blocs et gérer la présence des redans ou des ouvertures dans les façades. Chaque panneau est fixé au voile de façade à l’aide de suspentes en inox, qui permettent de régler les décalages de 7 ou 14 cm existant entre les blocs. Des distanceurs sont disposés en pieds de panneaux. Les panneaux sont séparés les uns des autres par des profilés en acier fixés dans le voile en béton pour éviter qu’ils ne s’entrechoquent en cas de séisme.
Reportage Photos : Charly BROYEZ et Stéphane ABOUDARAM ©WEARECONTENTS
Maître d’ouvrage : APIJ, Agence publique pour l’immobilier de la justice – Maître d’œuvre : Ateliers 2/3/4/ ; Christine Edeikins, architecte associée – BET et économie : CET – Paysagiste : Tournesol – Conception mobilier tertiaire et signalétique : Guliver design – Entreprises : Groupement Sogea Sud ; entreprise générale, SNEF et Thermatic – Préfabricant : Delta Préfabrication – Surface : 8 057 m2 SHON – Coût : 16,5 M€ HT – Programme : tribunal de grande instance, tribunal d’instance, tribunal de commerce et conseil de prud’hommes. Salles d’audience, espaces tertiaires et espaces partagés.

COMMENTAIRES
2 COMMENTAIRES