JANVIER 2026 -
Auteur

Clinique, Ehpad, résidence services et crèche réunis en un établissement

Au cœur de la Provence, un ensemble dédié aux soins s’organise autour d’espaces verts. Insertion dans le paysage, choix de matériaux pérennes et mise en œuvre exemplaire des bétons caractérisent le projet.

Vus de loin, les volumes supérieurs de béton blanc paraissent flotter au-dessus de leur socle en moellons qui, à l’inverse, semble bien ancré dans le terrain.

L’ancienne clinique Provence-Azur située dans le village d’Éguilles, aux portes d’Aix-en-Provence, était devenue vétuste. Le site de remplacement retenu, en lisière de la plaine voisine, s’inscrit dans un territoire en transition, entre terres agricoles, zones pavillonnaires et équipements urbains. La maîtrise d’ouvrage attendait un outil fonctionnel adapté aux exigences d’un équipement médical pluridisciplinaire. Parmi les priorités figuraient l’optimisation des distances, la distinction des flux patients/visiteurs et la continuité du parcours de soins. Un marché privé suivi d’une commande directe a dès lors été lancé.

Les portiques en béton gris, qui franchissent plus de 15 m, signalent les entrées des différentes parties du programme.

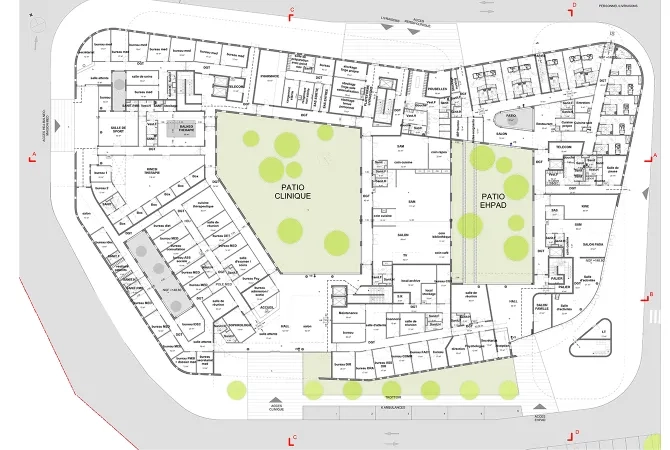
L’établissement s’organise au-dessus d’un socle regroupant les fonctions partagées – maison médicale, centre de kinésithérapie avec balnéothérapie, salle de sport rééducative et espace de restauration. Les étages rassemblent la clinique Provence-Azur de 136 lits et l’établissement d’hébergement pour personnes âgées dépendantes (Ehpad) Le Blanc Galet de 64 lits, dont certains dédiés aux troubles cognitifs. Une résidence services pour personnes âgées (RSPA) de 15 logements et une crèche de 30 berceaux complètent le programme.

Le béton au centre de toutes les attentions

Menuisier ébéniste de formation, Christophe Gulizzi, l’architecte-artisan, comme il se définit lui-même, a retenu le béton pour « sa richesse sémantique », mais aussi pour « l’inertie, la tenue et la profondeur de la matière », rappelant au passage la prégnance du minéral dans l’architecture méridionale. Ces valeurs se retrouvent dans la mise au point pointilleuse du béton. Le choix de granulats clairs issus de carrières locales répond au souci de minimiser l’impact logistique. Une attention particulière a permis de maîtriser la formulation et la teinte, en faveur d’une homogénéité des parements, avec l’élaboration d’une formulation de béton architectonique à faible empreinte carbone. Des prototypes ont parallèlement permis de valider les solutions de liaison entre béton frais et béton durci proposées par l’entreprise. Celle-ci a été associée à l’étude du calepinage des voiles : rythme des trous de banches, positionnement des reprises de coulage au droit des ouvertures et optimisation des hauteurs pour limiter les reprises verticales.

Le soubassement en moellons et les portiques en béton gris renforcent la légèreté visuelle des niveaux supérieurs en béton blanc.

Déterminantes sur le plan esthétique, les reprises de bétonnage ont été traitées par un joint creux au niveau des planchers. Dans le sens vertical, la solution a consisté à superposer les trous de banches pour préserver le rythme du calepinage. Autre caractéristique, les porte-à-faux, de 4 à 7 m, sont repris par deux poutres-voiles en console, de 7 m de longueur sur deux niveaux de hauteur, associées à un plancher spécifiquement dimensionné. L’avantage de cette intégration d’éléments porteurs à l’architecture est un allègement général. Quant aux contraintes sismiques, elles ont été satisfaites par une analyse modale spectrale en 3D de chaque corps de bâtiment pour déterminer la disposition des bandes de clavetage – ces dernières solidarisant les éléments de béton entre eux. Leur intégration en amont au calepinage des banches répond à un souci de logique structurelle et de cohérence esthétique.

Contrepoint au béton, le soubassement est constitué de moellons en pierre calcaire de 20 cm d’épaisseur, récupérés sur site et montés au mortier. Fidèle à l’appareillage rustique, il rappelle les restanques, ces constructions en pierres sèches typiques du Bassin méditerranéen.

L’entrée de l’Ehpad est marquée par un profond porte-à-faux et les angles arrondis des niveaux supérieurs, qui renvoient à la dimension du « care ».

Les patios, outils d’adaptation climatique

Générant un véritable microclimat, les patios agissent comme autant de puits de lumière. Ils assurent un apport bienfaisant en éclairage naturel tout en évitant les surchauffes estivales. Compte tenu de la profondeur importante du bâtiment, la conception s’est naturellement structurée autour de deux grands patios, complétés par d’autres plus modestes, en faveur d’une organisation fluide et flexible des espaces. Ils définissent des zones tampons abritées, propices aux échanges d’air, notamment au rafraîchissement passif des locaux.

La disposition décalée des fenêtres et le retrait des niveaux supérieurs contribuent à la douceur des volumes.

La végétation contribue à la régulation de la température par augmentation du taux d’humidité de l’air et réduction de la chaleur excessive. Ce lien avec la nature se retrouve dans l’implantation en pente douce et les toitures végétalisées. Quant à l’aménagement paysager, il favorise la biodiversité avec ses vergers, prairies fleuries, arbres méditerranéens et haies bocagères.

Qualité de vie et confort thermique

La priorité accordée au bien-être des usagers est étroitement liée à une conception bioclimatique. Différentes stratégies passives et actives assurent ainsi le confort thermique en minimisant le recours à la technologie. Le choix de fenêtres étroites va dans le sens d’une réduction des déperditions thermiques, de la régulation des apports solaires et de la diffusion homogène de lumière naturelle, sans zone de surchauffe. Équipées de volets roulants en aluminium avec stores intérieurs sur les façades les plus exposées, les menuiseries extérieures – également en aluminium – renforcent la maîtrise des apports solaires par leur double vitrage faiblement émissif et leurs intercalaires thermiquement améliorés. La limitation de la climatisation est compensée par une ventilation naturelle, un tiers des surfaces vitrées permettant une aération efficace garante du climat intérieur. Le retrait de nombreux locaux, à l’abri d’une loggia ou sous un porte-à-faux, répond au même souci de confort.

Les façades qui donnent sur le grand patio intérieur se caractérisent par un vocabulaire minimaliste et, suivant l’orientation, des loggias abritées du soleil.

La dimension esthétique et symbolique n’est pas en reste : dominant, le blanc du béton évoque la pureté, la clarté et la sérénité propres à un établissement de soins. L’architecte évoque à cet égard les « moments de vie parfois fragiles – naissance, rééducation ou fin de vie ». Caractérisé par ses angles arrondis, le vocabulaire architectural organique souligne la dimension protectrice et bienveillante que contient l’idée de prendre soin.

Localiser la réalisation

Reportage photo : © Stéphane Aboudaram/We are contents

Fiche technique

  • Maîtrise d’ouvrage : Dimacco / Edemacco
  • Maîtrise d’œuvre : Christophe Gulizzi Architecte (mandataire)
  • BET :
    • Iliade Ingénierie (structure - conception, économiste, thermique)
    • Secoba (structure - exécution)
    • Géoterria (géotechnique)
    • TEP2E (acoustique)
  • Entreprise gros œuvre : Ragoucy
  • Surface : 12 062 m²
  • Coût travaux : 19,3 M€ HT
  • Programme : clinique de 136 lits, Ehpad, résidence services seniors de 15 logements et une crèche ; maison médicale, centre de kinésithérapie, salle de sport rééducative et espace de restauration.

Commentaires 0

Aucun commentaire disponible.

Laisser un commentaire

CAPTCHA