DÉCEMBRE 2025 -
Auteur

Villa G, un métissage audacieux

La villa G, conçue par l’agence Clément Conil Architecte, offre à ses habitants un cadre de vie moderne ouvert sur la lumière et le paysage méditerranéen.

La villa G s’intègre avec respect et discrétion dans la pente du mont Faron et la nature environnante.

Emblématique de Toulon, le massif de calcaire blanc du mont Faron culmine à une altitude de 584 m. Site naturel classé, depuis le 1er février 1991, il est aussi intégré au réseau Natura 2000. Avec le développement de l’urbanisation au XXe siècle, des quartiers résidentiels de villas avec vue sur la mer ont vu le jour sur ses pentes. Le classement en site naturel a mis fin à l’étalement urbain et au mitage en cours dans les périphéries favorisées de la ville.

Situé en zone construite à la limite des espaces naturels classés, le terrain de la villa G est adossé au flan est du mont Faron. Il bénéficie d’un généreux ensoleillement (est/sud) et offre également de superbes vues panoramiques en balcon sur la ville, la rade, le mont Coudon, les îles d’Hyères, la Méditerranée jusqu’à l’horizon. Sa forte pente est-ouest, rythmée de restanques en pierre sèche, est ponctuée d’oliviers, de pins parasols, de figuiers et de toute une végétation de garrigue.

L’extension s’ouvre sur son écrin de verdure et sur le superbe panorama.

L’ensemble constitue un généreux écrin naturel caractéristique du paysage méditerranéen. 

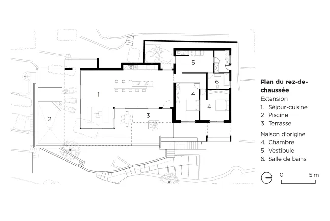
Lorsque les actuels propriétaires ont fait l’acquisition de ce terrain, une villa en style traditionnel néo-provençal se dressait en partie haute, implantée perpendiculairement à la pente. Cette construction sans grand intérêt se composait de deux volumes, un corps principal au nord à R+1 et une extension au sud à rez-de-chaussée.

La maison existante ne convenait pas aux nouveaux propriétaires. Ils ont confié à l’architecte Clément Conil le projet de la transformer pour en faire une habitation contemporaine aux espaces de vie commune ouverts à la lumière et sur les magnifiques vues panoramiques.

Un audacieux auvent de béton projeté sur le paysage

« La villa G joue résolument avec les contrastes », souligne l’architecte. « Son caractère résulte d’un métissage osé tant des matériaux que des lignes et des textures choisies ; mais il résulte aussi d’un dialogue harmonieux entre les éléments : intérieur et extérieur, construction et eau, opacité et transparence. L’eau, véritable joyau en Méditerranée, y est très présente. »

« Il s’agissait pour ce projet de travailler à partir de la construction existante, inscrite au cœur de son jardin méditerranéen en pente », poursuit l’architecte. « Très rapidement le choix s’impose de conserver le volume nord pour y aménager les chambres et de détruire la partie sud, qui est reconstruite sur une emprise sensiblement identique. Cela permet d’éviter d’importants travaux de terrassement en profitant de la plate-forme déjà présente. »

« Dans cette partie neuve, en rez-de-chaussée, les pièces de vie commune sont organisées afin de profiter pleinement de la vue et de la richesse de la nature environnante. L’extension est conçue comme un simple mais audacieux auvent de béton semblant flotter et s’élancer vers le lointain. Cet auvent abrite le séjour-cuisine, un espace de vie baigné de lumière qui se poursuit en terrasse puis en piscine. »

Fenêtres grandes ouvertes, la limite intérieur/extérieur s’estompe au profit de la continuité du dedans et du dehors conformément au mode de vie méditerranéen.

Espace lumineux ouvert et transparent

Depuis la route en contrebas, la villa G se découvre au fur et à mesure des méandres du cheminement montant la pente entre les restanques et la végétation du jardin. Elle apparaît ancrée dans son sol, tapie dans la végétation et en même temps aérienne, légère, avec la fine dalle en béton de l’extension adossée à la bâtisse conservée, qui élance sa ligne horizontale vers le sud, étirant le bâti dans le paysage vers la mer et l’horizon. Dès cette première perception, le jeu des contrastes évoqués par l’architecte est à l’œuvre.

La porte d’entrée en bois se situe à l’articulation entre la partie neuve et celle conservée. Elle s’ouvre sur l’espace de vie, lui fait face une porte vitrée, unique ouverture dans un mur continu s’étendant jusqu’à la terrasse au sud. Le plan vertical de ce mur et celui horizontal de la toiture fabriquent une équerre spatiale qui enveloppe les lieux de la vie commune de son parement en béton brut. Côté sud et est, de grandes baies, toute hauteur, s’enchaînent dans un mouvement continu qui reprend la forme en L de la dalle de couverture. Elles viennent, tel un paravent vitré, clore l’espace intérieur fluide, lumineux, généreusement ouvert qui se poursuit par la terrasse et la piscine en profitant des vues sur l’écrin de verdure environnant ainsi que sur le superbe panorama offert au regard. La dilatation vers l’extérieur de l’espace intérieur est accentuée par le prolongement de 2 m à 2,5 m de la dalle de toiture et de son parement en béton brut au-delà des parois vitrées. La limite intérieur/extérieur s’estompe, favorisant aux beaux jours, lorsque les fenêtres sont grandes ouvertes, la possibilité de profiter de la continuité du dedans et du dehors conformément au mode de vie méditerranéen. Opacité et transparence donnent sa qualité et son identité à ce lieu de vie. Implanté au bord de la limite sud de la terrasse, le bassin de la piscine à débordement se prolonge à angle droit par un couloir de nage qui s’étire le long du côté est. Le miroir scintillant de l’eau borde la terrasse et permet ainsi de ne pas avoir de garde-corps disgracieux. Les vibrations des rayons du soleil sur l’eau reflètent leur mouvement changeant au fil des heures sur la surface en béton du plafond.

Le béton, matière de l’extension

Le mur ouest et la dalle de couverture de l’extension sont réalisés en béton coulé en place. La dalle est fabriquée par un coffrage horizontal composé de panneaux de contreplaqué soigneusement calepinés, nettoyés, traités et huilés pour obtenir le parement brut souhaité. Elle est portée par le mur ouest et trois poteaux situés aux angles de retournement des façades vitrées. Ils sont en acier et revêtus d’un habillage de la même matière et de la même teinte que les menuiseries aux profils minimalistes en aluminium laqué noir. Les poutres en béton sont retroussées, afin de garder continu le parement brut de la sous-face. 

Pour la même raison, l’isolation thermique au-dessus de l’espace habité se fait par l’extérieur. Une partie de la surface supérieure de la dalle est aménagée en terrasse pour la suite parentale située à l’étage du bâtiment conservé. Si les débords en casquette participent à l’esthétique du projet, ils permettent également de protéger les parois vitrées du rayonnement direct en évitant ainsi tout risque de surchauffe de l’espace intérieur. Les façades du corps de bâtiment conservé sont habillées d’un revêtement en pierre naturelle.

Tout en affirmant la pureté de ses lignes ainsi que la modernité de son architecture et de ses espaces, la villa G met en valeur le site en s’intégrant avec respect à la pente du mont Faron et à la nature environnante.

Localiser la réalisation

Reportage photo : © Charline Noir

Fiche technique

  • Maître d’ouvrage : privé
  • Maître d’œuvre : Clément Conil Architectes
  • Surface : 190 m2 SDP
  • Coût : NC
  • Programme : réhabilitation-extension d’une maison particulière de 3 chambres, séjour et piscine.

Commentaires 0

Aucun commentaire disponible.

Laisser un commentaire

CAPTCHA