Médiathèque estaminet, un « troisième lieu » pour tous
Par son volume parallélépipédique suspendu en béton clair, la médiathèque conçue par les architectes Richard et Schoeller affirme son statut d’équipement public avec force et simplicité.

Grenay se situe entre Lens et Béthune, au cœur du bassin minier du Nord-Pas-de-Calais, une région où le taux d’illettrisme dépasse les 11 % de la population (moyenne nationale 7 %). Cette petite ville de 6 900 habitants, lourdement touchée par le chômage qui concerne 22 % de ses travailleurs, est l’une des plus pauvres de France dans sa catégorie. Bordée par la voie de chemin de fer qui la sépare de Bully-les-Mines, elle comprend trois cités minières correspondant aux anciennes fosses fermées au début des années 1970. Pour les réunir, il a fallu créer un centre urbain, ouvrir des petites voies de liaison, des « voïettes », réorienter les habitations vers le centre. Le projet de la médiathèque Estaminet marque l’aboutissement de ce processus.
Édifiée à la convergence des trois cités, créant un lien matériel et visuel, elle achève de donner une centralité, là où auparavant se trouvait un terrain vacant. Équipement public original, elle rassemble des fonctions traditionnellement éparses – services municipaux, café, salle de spectacle, etc. Dans un même bâtiment, les visiteurs peuvent passer du temps à consulter un livre, un journal, tout en attendant un rendez-vous à la PMI et en buvant un café ou une « Page 24 », une bière locale au nom prédestiné. Parce qu’elle est incluse au milieu d’autres activités, éventuellement soutenue par des animations, la lecture devient accessible à tous. C’est du moins le pari qui est fait là.


Une triple ambition
La médiathèque Estaminet relève autant du projet social et politique que d’un programme culturel. Elle existe grâce à la volonté tenace de la mairie communiste déjà investie dans plusieurs actions éducatives et convaincue de la nécessité de faciliter l’accès à la culture et à l’éducation pour une population peu mobile. Pour incarner cette ambition, « il ne manquait plus que la boîte », raconte Ali Boukacem, ancien directeur du pôle Culture qui a participé au projet dès son origine et occupe aujourd’hui le poste de directeur général des Services. « Afin d’élaborer le programme, nous avons cherché des exemples de réalisations en France comme à l’étranger. Et puis, nous avons fait appel au bureau d’ingénierie culturelle Émergences sud pour nous épauler. Nous nous sommes appuyés sur des réalisations de médiathèques hollandaises notamment, inspirées de la notion de troisième lieu » : une notion forgée au début des années 1980 par Ray Oldenburg, professeur de sociologie urbaine à l’université américaine de Pensacola en Floride. Le troisième lieu, dédié à la vie sociale de la communauté, se rapporte à des espaces où les individus peuvent se rencontrer et échanger de façon informelle ; le premier lieu concerne la sphère du foyer et le deuxième, la sphère du travail. Pour Oldenburg, le café en représente la forme la plus aboutie mais d’autres, chercheurs et praticiens, considèrent que la bibliothèque en offre un exemple tout aussi probant. La médiathèque Estaminet rassemble les deux et bien d’autres activités, devenant ainsi un lieu de sociabilité central de la vie des Grenaysiens.
Le soutien de la région Nord-Pas-de-Calais a été déterminant, tant sur le plan financier (80 % du budget) que pour le montage du projet qui aura pris trois ans. Toutes les étapes du projet se sont déroulées en concertation avec les élus, mais aussi avec les habitants, invités régulièrement à participer à des réunions d’information puis à suivre le déroulement du chantier et jusqu’à l’inauguration à laquelle tous étaient conviés ; 4 000 personnes étaient présentes. Depuis, ouverte 6 jours sur 7 à raison de 44 heures hebdomadaires, la médiathèque accueille en moyenne 200 personnes par jour de tous âges et de toutes origines ! Le nombre d’inscrits comme de prêts a explosé. Elle a reçu le prix de l’accueil au Grand Prix Livres Hebdo 2015 de bibliothèques francophones.


« Tout communique »
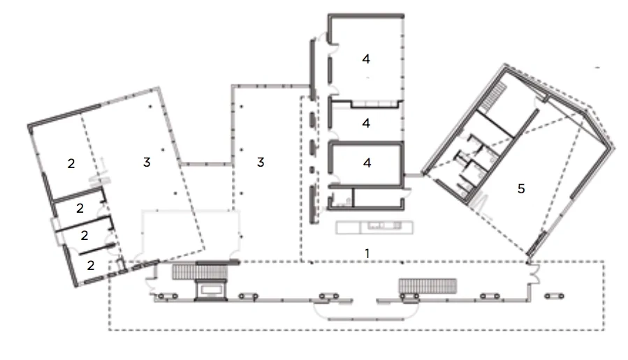
De forme triangulaire, le terrain d’assise de la médiathèque se situe à l’angle de la rue Jules Guesde, voie principale qui traverse la ville, et de la rue Louis Legay. Sur les trois côtés du terrain, des pavillons de plain-pied et à un étage, construits en maçonnerie enduite claire et en briques rouges, occupent les parcelles voisines. Sans bousculer les gabarits alentour, l’architecture contemporaine de la médiathèque, appuyée par l’emploi du béton blanc dans un pays où la brique domine, rend immédiatement lisible son statut d’équipement public et opère comme faire-valoir. La particularité de son programme trouve une traduction dans l’organisation, la composition et les volumes de la nouvelle construction. Comme l’expliquent les architectes, « le principe adopté répond aux usages et tend à les rendre les plus ouverts possible, permet une pratique, des parcours sans a priori. […] Le lieu est conçu comme une incitation à faire de la richesse du fonds documentaire et sonore une création individuelle et collective par de multiples activités ».
Le programme se développe à partir d’un premier corps de bâtiment qui s’étire le long de la rue Jules Guesde et marque la présence de la médiathèque dans la ville. Sa façade principale, orientée au nord, s’affirme par un volume de béton blanc suspendu, porté par six poteaux en forme de V. Ce volume haut se termine à chaque extrémité par un pignon. En dessous et en retrait, le rez-de-chaussée est entièrement vitré, laissant apercevoir depuis la rue tout le fonctionnement interne du bâtiment jusqu’au jardin arrière. Dans l’espace d’entrée, une banque d’accueil devient un bar équipé d’une pompe à bière : espace de l’estaminet et/ou de consultation des périodiques qui bénéficie d’un prolongement extérieur sur le parvis nord-ouest. Deux escaliers de béton noir teinté dans la masse s’élèvent parallèlement à la façade pour disparaître derrière le voile béton de l’étage où est installée l’administration de la médiathèque : un espace peu cloisonné et généreusement éclairé par des fenêtres en bandeau qui cadrent le paysage alentour.
Les trois volumes qui se déploient en éventail à l’arrière du premier contiennent respectivement la médiathèque et les ateliers, les bureaux de services sociaux et une salle réservée aux enfants, la salle de diffusion pouvant accueillir aussi bien des réunions, des conférences que des spectacles ou des expositions. Les façades sud des deux premiers sont vitrées sur le jardin aménagé à l’arrière. La salle de diffusion, différenciée depuis l’extérieur par son volume angulé habillé de tôles d’acier laqué perforées, peut, selon son programme, occulter toute lumière extérieure ou bien s’ouvrir complètement sur l’estaminet ou encore partiellement sur le parvis nord-ouest. La partie organisée en ateliers – cuisine, musique, etc. – peut communiquer directement avec la médiathèque ou, à l’inverse, s’en isoler pour accueillir des usagers directement depuis la rue Louis Legay. Toute la parcelle est occupée, entre le bâtiment, le parvis et le jardin.


Libérer l’espace
Entièrement en béton armé laissé apparent, la structure du bâtiment a été pensée pour obtenir des espaces polyvalents, modulables et ouverts, avec des espaces libérés d’éléments de structure intermédiaires. Suivant les volumes, les solutions structurelles varient. Ainsi, tous les voiles de façade sont des doubles murs réalisés en béton de ciment blanc autoplaçant coulé en place de part et d’autre d’un isolant, selon une procédure mise en place avec l’entreprise locale. Le calepinage de ces voiles, intérieurs comme extérieurs, crée un effet de vagues qui accrochent la lumière. Le volume de la salle de diffusion est réalisé en mur à coffrage intégré isolé. Ces éléments préfabriqués sont dessinés pour obtenir des parois triangulaires qui fabriquent la géométrie du volume. La structure de l’étage en surplomb de l’entrée associe une double dalle et des poutres retroussées en toiture. À l’intérieur de la médiathèque, les pans de béton ponctuent les différents espaces et servent de surface de projection à l’arrière de la banque d’accueil, de plan d’affichage dans les salles, de séparation entre deux bureaux. Ils contribuent à qualifier l’espace et témoignent d’une exigence constructive, d’une recherche de justesse dans l’emploi de la matière.
Par ailleurs, l’association de la massivité du béton, de l’étanchéité des terrasses végétalisées avec la transparence et la finesse des façades en verre permet d’obtenir une inertie thermique importante et d’assurer la conformité à la RT 2012. Le confort d’été comme d’hiver est assuré, tout en privilégiant l’éclairage naturel.

Reportage photos : Sergio GRAZIA et Emmanuelle BLANC
Maître d’ouvrage : Ville de Grenay – Maître d’œuvre : r+s architectures, Isabelle Richard et Frédéric Schoeller – BET structure : Alpes structures – BET fluide : ESTB – Acousticien : ABC Décibel – Entreprise gros œuvre : Balestra – Surface : 1 800 m2 SDO – Coût : 3,5 M€ HT – Programme : médiathèque, estaminet, salle de diffusion, ateliers, administration sociale et culturelle, jardin sonorisé, parvis forain.
COMMENTAIRES
1 COMMENTAIRE