Une crèche de 62 berceaux - Paris
Sculptée dans le béton, cette crèche offre aux jeunes enfants des espaces intérieurs lumineux et des prolongements extérieurs protégés, dont la qualité est propice à leur épanouissement.
Créée en 1987, par des infirmières puéricultrices, ABC Puériculture est une association loi 1901 à but non lucratif. Spécialisée dans le secteur de la petite enfance, elle participe activement à l’effort engagé par la Caisse d’allocations familiales (Caf) et la Ville de Paris afin de répondre à la demande croissante des familles pour des places en crèche ou des solutions de garde à domicile. L’association est aujourd’hui à la tête de 24 crèches collectives dans Paris intra-muros.
Construite en cœur d’îlot
Conçu par les architectes Sylvie Brachet et Serge Djordjevic, un de ses établissements les plus récents, la crèche « l’Ours en Terrasse », se situe au cœur d’un îlot bordé par les rues Bretonneau, Pelleport et le Bua, dans le 20e arrondissement de Paris. On y accède depuis le numéro 8 bis de la rue Bretonneau, par un passage sous porche traversant un immeuble de logements. Le terrain était auparavant occupé par un atelier d’imprimerie datant du début du XXe siècle, qui a fait l’objet d’une déconstruction préalable. Invisible depuis la rue, il se développe en profondeur, selon une morphologie dite en « lanière ». L’immeuble de logements sur la rue Bretonneau marque la limite nord du site. Au sud, le fond de la parcelle jouxte un bâtiment de logements des années 70, tandis que la limite ouest est bordée par un immeuble de logements et par des jardins. Enfin, à l’est, deux petits immeubles de logements à R+3, suivis d’un jardin, sont attenants au terrain.
Protectrice et lumineuse
« Situé en fond de cour, dans un contexte urbain, dense, composite et hétérogène, notre projet se présente comme un édifice en béton brut intégrant différentes séquences », soulignent les architectes Sylvie Brachet et Serge Djordjevic. « Le cheminement extérieur se déploie depuis l’accès sur rue, en passant par la rampe, la cour basse paysagée, et enfin l’entrée dans le bâtiment. Une fois à l’intérieur, la promenade architecturale se poursuit à travers les différents niveaux de la crèche, et ce jusqu’au toit-terrasse accessible. Chacun de ces parcours intérieurs se prolonge extérieurement par des terrasses ou des patios, établissant de la sorte une porosité visuelle entre dedans et dehors. Ces différentes séquences se rassemblent pour ne former qu’un tout. L’unité de cette architecture s’apprécie d’abord à travers le déplacement des utilisateurs. Elle est exprimée et matérialisée par la présence du béton gris, dont la plasticité autorise un mouvement continu de la matière qui façonne et sculpte l’édifice. Assez opaque sur l’extérieur pour neutraliser les divers vis-à-vis, le bâtiment est très lumineux à l’intérieur, grâce à la mise en place de dispositifs architecturaux (patios, cour, sheds...) qui viennent capturer et diffuser la lumière naturelle. »
Lumière et fluidité spatiale
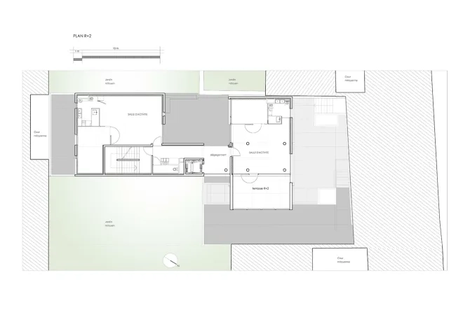
Une fois le passage situé sous l’immeuble sur rue franchi, la crèche se présente comme un édifice en béton brut sculpté par une composition géométrique de pleins et de vides, d’opacités et de transparences, de formes ancrées ou soulevées. L’entrée du bâtiment donne sur une cour intérieure située en contrebas. Elle est desservie par un ascenseur extérieur et par une rampe, qui offre aux usagers une promenade lente le long du mur mitoyen est sur une quinzaine de mètres linéaires. Les usagers pénètrent dans la crèche par l’intermédiaire d’un sas qui s’ouvre sur le hall, en partie en double hauteur. Ce dernier donne également sur le patio central qui ponctue le rez-de-chaussée et dispense la lumière naturelle au cœur du bâtiment. C’est à ce niveau que sont regroupées les deux sections des bébés, comprenant chacune une salle d’activité, une salle de change et une salle de sommeil. Aux beaux jours, les enfants peuvent bénéficier du patio sur lequel donnent de plain-pied les salles d’activité. Située à proximité de l’entrée, la direction bénéficie d’un contrôle visuel sur la cour d’accès, le sas d’entrée de la crèche et sur l’ensemble des activités du rez-de-chaussée. Les sections des moyens et des grands, organisées comme celle des petits, se répartissent au R+1 et au R+2. À chaque étage, une grande terrasse est destinée aux activités extérieures. Pour celles qui sont communes aux différentes sections (motricité, jeux d’éveil, etc.), une partie du toit-terrasse est aménagée de façon à les accueillir.
La fluidité des espaces intérieurs, la présence variée de la lumière naturelle capturée par différents dispositifs architecturaux (patios, cour, sheds...), la diversité des vues, des perspectives intérieures ou extérieures, les parcours conçus comme une promenade architecturale caractérisent et qualifient l’ambiance des lieux.
La structure associant poteaux, poutres, voiles porteurs, ainsi que les dalles de planchers et les façades sont réalisées en béton coulé en place. Le parement des façades est laissé brut et leur peau est animée par l’empreinte du calepin des banches de coffrage dessiné par les architectes. Conforme à la RT 2012, le bâtiment est isolé par l’intérieur, avec des retours sous-dalles de plancher quand cela est nécessaire pour supprimer les ponts thermiques.
Localiser la réalisation
Fiche technique
- Maître d’ouvrage : association ABC Puériculture
- Maîtrise d’œuvre : Sylvie Brachet & Serge Djordjevic, architectes dplg
- BET (structures) : LCV Ingénierie
- BET (fluides) : CLR Consulting
- Entreprise (gros œuvre) : entreprise LBC
- Surface : 660 m² SHON/960 m² SHOB
- Coût : 2,5 M€ HT
Programme : crèche neuve de 62 berceaux ; 2 sections bébés (de 2 mois ½ à 8 mois/de 8 à 12 mois), 2 sections moyens (de 1 à 2 ans), 2 sections grands (de 2 à 3 ans), 3 espaces de vie polyvalents adaptés à chaque tranche d’âge, 1 office de cuisine.

COMMENTAIRES
LAISSER UN COMMENTAIRE