AVRIL 2026 -
Auteur

Ensemble immobilier mixte « La Caravelle »

Amarré à proximité du canal du Rhône au Rhin, il déploie sobriété et profil étagé offrant au quartier un point d’ancrage dans le paysage.

Le FAM et les logements s’agencent selon une volumétrie dynamique à étagement, marquée d’horizontales, qui exploite l’ensemble de la parcelle et en marque les limites.

Située dans la commune d’Illkirch-Graffenstaden, troisième plus grande ville de l’Eurométropole de Strasbourg, La Caravelle s’inscrit au cœur d’un écoquartier, « Les Prairies du Canal », qui occupe une place stratégique à mi-chemin entre le Parc d’Innovation et le centre-ville d’Illkirch. Sa vocation première consiste à offrir aux habitants un environnement de qualité où prédomine le végétal, l’idée étant d’effacer au maximum la présence de la voiture et de privilégier les modes de déplacement doux, dont le tramway situé à proximité. Un autre de ses objectifs visait à offrir une mixité sociale intergénérationnelle. Le programme du projet va pleinement dans ce sens et justifie une position centrale dans l’écoquartier. En effet, il réunit dans un même ensemble un foyer d’accueil médicalisé (FAM) pour jeunes adultes lourdement handicapés et une résidence intergénérationnelle comprenant des logements pour séniors et des appartements destinés à la colocation.

Une forte présence du végétal à tous les étages, y compris au niveau du parvis ouvert aux riverains.

La conception et la réalisation de ce projet ne se sont pas exactement déroulées sans quelques rebondissements. Du concours en 2014 à l’inauguration en 2025, il aura fallu une bonne dizaine d’années pour qu’il se concrétise. Plusieurs raisons à cela, à commencer par la multiplicité des maîtres d’ouvrage. À l’origine, la ville était impliquée en souhaitant intégrer à l’ensemble une salle communale. Elle s’est retirée en cours de conception. Même scénario, côté bailleur social. Le premier s’est désisté.

Ces changements de partenaires ont induit des modifications de programme assez lourdes, réduisant la surface de la salle polyvalente et transformant la résidence sénior initialement prévue en résidence multigénérationnelle. Seules la Société d’aménagement et d’équipement du Rhin supérieur (SERS), en charge de l’aménagement de l’écoquartier, et l’Association régionale Aide aux handicapés moteur (ARAHM) pour le FAM ont fait partie de l’aventure de bout en bout.

S’en est suivie en 2020 la pandémie qui a tout ralenti, puis la flambée des prix qui a contraint les architectes à modifier de nouvelles fois le projet pour en assurer la viabilité.

Un travail d’équipe

L’histoire n’est pas exceptionnelle en soi, elle a juste le mérite de montrer la patience, la ténacité et l’engagement dont ont fait preuve les concepteurs impliqués dans ce projet. En effet, si le programme a été divisé en entités logiques – l’agence Richter & associés s’est occupée du foyer alors que le parking et la résidence ont été pris en charge par DWPA architectes –, La Caravelle forme un tout dont la cohérence visuelle révèle un beau travail d’équipe. Ces deux agences ont travaillé main dans la main lors de la définition du parti architectural et ont déployé une écriture commune. Ce qui a guidé la volumétrie du projet relève de plusieurs paramètres, à commencer par l’analyse du site. L’écoquartier privilégiant la hauteur des bâtiments afin de libérer plus de 80 % d’emprise au sol, le voisinage offre une alternance d’immeubles hauts, disséminés dans un environnement paysager. Pour offrir un point d’ancrage, le bâtiment dessiné exploite la parcelle dédiée dans sa totalité sans pour autant créer un volume unitaire et imposant. 

Les deux premiers niveaux (le FAM) s’organisent autour de larges patios végétalisés.

Une sobriété recherchée

Son profil étagé dévoile la volonté de faire monter le paysage à tous les étages jusqu’au point le plus haut du bâtiment. Ce découpage en cascades modifie l’échelle de la construction tout en créant une dynamique renforcée par les surfaces plantées à différents niveaux. Tous les étages, résidence et foyer compris, bénéficient de sorties de plain-pied sur l’extérieur. Le but des concepteurs n’était pas seulement d’offrir des vues mais surtout de multiplier les possibilités de déplacement à la manière d’une promenade. L’écriture architecturale qui en résulte pourrait être qualifiée de « simple ». Une dimension que les architectes revendiquent. Leur souhait était de produire une image calme dans un environnement peuplé d’objets architecturaux hétéroclites et de déployer une écriture atemporelle présentant plusieurs niveaux de lecture. Si la première impression est celle d’une succession de plans étagés agrémentés de terrasses végétalisées, survient assez rapidement la prédominance des horizontales puis le rythme donné par les ouvertures. En s’attardant, l’œil capte des éléments de détail générant une modénature subtile à l’instar des différents découpages ménagés dans les ouvertures de format identique. 

La toiture-terrasse du R+1 aménagée pour offrir aux résidents un large espace extérieur protégé et de qualité.

Des espaces ouverts

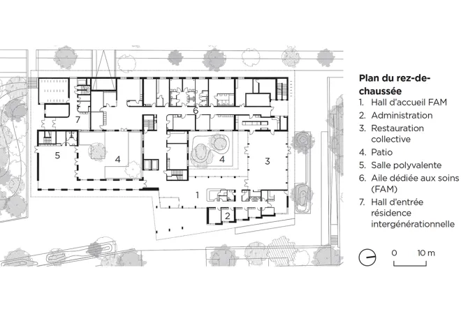
Côté répartition du programme, la résidence intergénérationnelle se déploie du R+2 au R+6, à la manière d’une barre étagée posée, côté nord, sur le socle formé par le foyer d’accueil médicalisé. Ce dernier occupe le rez-de-chaussée et le R+1 et a pour vocation d’offrir à ses résidents, des personnes lourdement handicapées, un vrai lieu de vie, apaisant, agréable et personnalisable. Pour l’agence Richter, concevoir un projet destiné aux plus fragiles n’est pas restrictif mais au contraire porteur d’inventivité spatiale. Afin d’éviter la sensation d’enfermement et permettre un maximum de transparence, les espaces du foyer s’organisent autour de deux patios généreux dans leurs proportions. Multipliant les vues entre intérieur et extérieur, ils permettent de se repérer à tout moment lors des déambulations dans le bâtiment. À l’intérieur, grâce aux patios, les parcours sont fluides. Les circulations sont évidemment larges mais surtout baignées de lumière avec à la clé des atmosphères différentes à chaque déplacement et tout au long de la journée. 

L’ambiance douce et lumineuse du hall d’accueil du FAM qui joue sur l’ouverture, la transparence et la présence du végétal.

Pour éviter de donner la sensation aux résidents de vivre dans un établissement de type hospitalier, un soin particulier a été apporté à la progression entre espaces totalement partagés et sphère intime. Le rez-de-chaussée comprend les espaces de soin et de restauration collective ainsi qu’une salle polyvalente pouvant accueillir du public venant de l’extérieur. L’étage se divise en unités de vie conçues à la manière d’un grand appartement réunissant des colocataires. Chaque résident profite d’un espace privé de 27 m2, balcon compris, et d’une salle de bains de 9 m2 partagée à deux. Équipée d’éléments sur mesure, bureau et rangements, la surface de la chambre laisse suffisamment de place pour l’intégration d’éléments personnels. En termes de personnalisation, chaque résident pouvait également choisir deux teintes dans un nuancier défini en concertation avec le maître d’ouvrage. Présentes sous forme d’aplat, ces deux pointes de couleur animent sans surcharger l’ambiance, teintes que l’on retrouve par touches dans les espaces de circulation de chaque unité. 

Des touches de couleur rythment et humanisent les locaux des unités de vie du FAM.

Des choix raisonnés

Côté matériaux, ils ont été choisis pour leur solidité et leur durabilité. Le béton coulé en place, utilisé pour la structure et les façades, en est un bon exemple. Il remplace ici le bois initialement prévu et relève d’un choix technico-économique pour maintenir la générosité des surfaces indispensable au confort des usagers. Dans cet esprit de sobriété et de simplicité, sa présence se fait discrète, masquée la plupart du temps par une isolation par l’extérieur qui, couplée à l’inertie du béton, assure de bonnes performances énergétiques. Seuls quelques éléments demeurent bruts, le soubassement en façade nord et quelques poteaux dans le hall d’entrée du foyer recouverts d’une lasure vert-de-gris. Elle vient s’harmoniser à l’ambiance sobre recherchée dans l’ensemble du bâtiment, constituée de teintes neutres et lumineuses, une habile façon de créer une atmosphère apaisante tout en maximisant les apports en lumière naturelle. Car ici, tout est axé sur la mise en valeur des différents types de mouvement mais aussi du vivant incarné notamment par la végétation toujours à portée de regard.

Qualités environnementales : RT 2012.

Les chambres/studios du FAM pensés pour que chaque résident puisse les personnaliser.

Localiser la réalisation

Reportage photo : © Luc Boegly

Fiche technique

  • Maître d’ouvrage : SERS, ARAHM (FAM) ; Domial (logements) 
  • Maître d’œuvre : Richter architectes et associés, mandataire (FAM) ; DWPA, architectes associés (logements)
  • BET : Sib (études, structure) ; Solares Bauen (fluides, HQE®) ; ESP (acoustique
  • Paysagiste : Acte 2 Paysage 
  • Entreprise gros œuvre : KS Construction
  • Surface : 7 600 m2 SDP
  • Coût : 16,5 M€ HT 
  • Programme : 41 logements en locatif, un foyer d’accueil médicalisé de 32 chambres, jardins en terrasse, restauration collective, un parking souterrain.

Commentaires 0

Aucun commentaire disponible.

Laisser un commentaire

CAPTCHA