Cité Olympe-de-Gouges, 61 logements collectifs sociaux
Jointes ou à claire-voie, les briques de béton soulignent la variation des volumes et des hauteurs : une partition architecturale singulièrement jouée par l’agence Tectõne.

Aux portes de Paris, la Zac du Plateau se développe depuis 2007 dans le nord-ouest de la commune d’Ivry-sur-Seine pour accueillir plus de 1 100 logements dont la moitié en social et 32 000 m2 de bureaux ainsi que des équipements. Labellisé écoquartier en 2015, il répond à l’ambition de créer un environnement urbain agréable, associant haute qualité environnementale et haute qualité artistique et culturelle, avec des espaces publics réaménagés favorisant les mobilités douces, une majorité de logements économes en énergie, labellisés BBC et Effinergie +. L’opération de 61 logements sociaux locatifs livrée en 2019 par l’agence Tectõne relève bien de cette ambition.
Contextuelle et environnementale, la cité Olympe-de-Gouges
Située à l’angle de la rue Hoche et de la venelle Olympe-de-Gouges, la cité Olympe-de-Gouge s’intègre dans un contexte urbain qu’elle contribue à façonner par un épannelage progressif allant de un à sept étages. Au nord de la parcelle, sa faible hauteur de bâti s’accorde aux pavillons du passage Hoche auxquels elle s’adosse. Elle croit vers le sud pour atteindre quatre à sept étages sur l’espace public ; le bâtiment le plus haut marque l’angle des deux voies. Outre ce jeu sur les hauteurs, les bâtiments sont positionnés en quinconce de manière à créer des porosités visuelles sur les jardins de la résidence — certains privatifs dans le prolongement d’appartements du rez-de-chaussée, d’autres collectifs ouverts sur l’espace public. Cette implantation combinée à l’épannelage évite de créer un front linéaire et permet de multiplier les orientations possibles des logements : tous les logements bénéficient d’une double orientation et donc d’un ensoleillement à différents moments de la journée ainsi que la possibilité de ventiler naturellement les pièces. Un jardin, un balcon ou une loggia offre un prolongement extérieur au séjour et parfois également à une chambre. L’agencement des appartements comme des parties communes privilégient l’éclairement naturelle. Les halls traversants, les escaliers éclairés en façade et les paliers d’étage en second jour sont, de ce fait, autant d’espaces plaisants à emprunter et propices à la convivialité. Les cuisines, qu’elles soient ouvertes sur le séjour ou fermées sont éclairées en façade.
Jeu de briques béton et de volumes
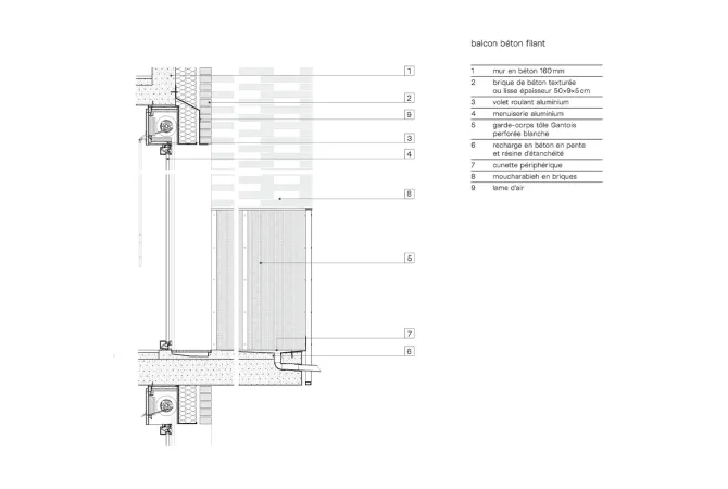
Singularité du projet, aux jeux de hauteurs et de volumes, s’ajoute celui de la matérialité du bâti. Les briques de béton de couleur blanche, de 10 cm d’épaisseur, habillent les façades d’une seconde peau. Ce procédé constructif de mur « manteau », placé devant l’isolant fixé sur le mur de structure en béton de 160 mm et dont il est séparé par une lame d’air, assure de très bonnes performances thermiques tout en offrant une facilité de maintenance économique. Toute la structure est en béton coulé en place.
Les différentes finitions et mises œuvre des briques correspondent aux étages qu’elles habillent. Tantôt moucharabieh, en clôture elles filtrent les vues tout en conservant des porosités visuelles et laissant l’épanouissement possible de la biodiversité. Au niveau des loggias, ce même dispositif préserve l’intimité mais laisse passer la lumière, permet de voir vers le dehors et de cacher le stockage éventuel d’objets. Tantôt jointes, les briques changent de texture et de finition suivant le niveau qu’elles habillent, soulignant la variation des hauteurs. La finition texturée, plus rude et aléatoire assure au soubassement une plus grande pérennité, une meilleure absorption des chocs éventuels et présente une surface dont la rugosité et l’irrégularité rendent les graffitis plus difficiles à réaliser. Sur les étages, les briques sont la finition lisse et homogène apporte une légèreté au bâtiment, assurent, là aussi, une grande pérennité aux façades.

Localiser la réalisation
Fiche technique
Reportage photos : © Cyrille Lallement
- Maître d'ouvrage : OPH d’Ivry-sur-Seine
- Aménageur : Grand Paris aménagement
- Maître d'œuvre : Tectõne, architectes ; Pauline Casasola, Antoine Scalabre, Jennifer Dot, chargés de projet
- BET : Betem.
- Paysagiste : atelier Moabi
- Entreprise générale : les Maçons parisiens
- Entreprise de préfabrication : NA
- Surface : 4 123 m2 SDP, 3 862 m2 Shab - Coût : 6 900 000 € HT
- Programme : 61 logements locatifs sociaux (PLAI), un parking en infrastructure 32 places - RT 2012 / H&E profil A / Effinergie +.
COMMENTAIRES
LAISSER UN COMMENTAIRE